
Wettiner Straße 17, 98617 Meiningen
Stadtzentrum
Altersgerecht "Ready Plus"
Stadtzentrum
47-105 m² Wohnungen
Stadtzentrum
OPTIMAL GELEGEN. SCHNELL VERBUNDEN.
Entdecken Sie das ehemalige Ärztehause als neue, moderne Wohnanlage. Genießen Sie atemberaubende Ausblicke, die Nähe zur Altstadt und kulturellen Highlights wie das Theater. Das denkmalgeschützte Gebäude überzeugt durch seine zentrale Lage mit direkter Anbindung an das neue MVZ, die Innenstadt und die Autobahnen A71 – perfekt für jede Lebenslage.
1 Min. zum Marktplatz / Altstadt
5 Min. zum Bahnhof Meiningen
7 Min. zur Autobahnauffahrt A71
1 Min. zur nächsten Apotheke / MVZ
3 Min. Einkaufsmöglichkeiten
6 Min zum Klinikum Meiningen
INNENAUSSTATTUNG & HIGHLIGHTS
Unsere Eigentumswohnungen bieten großen Komfort: Balkone, Terrassen, private Gärten, hochwertige Böden, Malerarbeiten und barrierefreie Zugänge. Ein Aufzug führt ebenerdig direkt zur Wohnungsebene. Innen überzeugen Echtholzparkett, Villeroy & Boch-Sanitärobjekte, bodengleiche Duschen, elektrische Rollläden und Fußbodenheizung. Ein modernes Energiekonzept mit PV-Anlage und Nahwärmenetz rundet das Angebot ab.
HIGHLIGHTS
-
Große Balkone und Terrassen
-
E-Bike Stellplätze
-
Hochwertige Ausstattung und Malerarbeiten
-
Barrierefreiheit "ready plus"
-
Aufzug in alle Wohnungsebenen
-
Fußbodenheizung mit Einzelraumsteuerung
-
Frischwasserstationen in jeder Wohnung
-
großräumige Bäder mit Walk-in-Dusche
-
Modernes Energiekonzept mit PV-Anlage und Nahwärmenetz
-
3-Fach verglaste Fenster und Türen
-
Hoher Energiestandard und geringe Betriebskosten
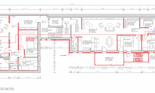
BEISPIELWOHNUNGEN & GRUNDRISSE
Es entstehen 2- bis 4-Zimmer-Wohnungen mit großzügigen Wohn-Essbereichen, modernen Bädern und Abstellräumen. Fast alle Wohnungen bieten ein Bad mit Wanne und Dusche sowie Gäste-WCs. Fast jede Einheit verfügt über einen Balkon, eine Dachterrasse oder einen Garten. Im Erdgeschoss befinden sich Keller, Abstellräume und E-Fahrradstellflächen. Ein großer Aufzug ist im Haupthaus vorhanden. Photovoltaik und die Anbindung an das Nahwärmenetz von Meiningen sorgen für nachhaltige Energie und die Außenanlagen fügen sich harmonisch in die Umgebung ein.

YOUR CONTACT PERSON
MARCEL MÖLTER
Sie interessieren sich für das Wohnprojekt Wettiner Straße? Unser kompetenter Experte berät Sie gerne. Wir freuen uns auf Ihre Anfrage!















